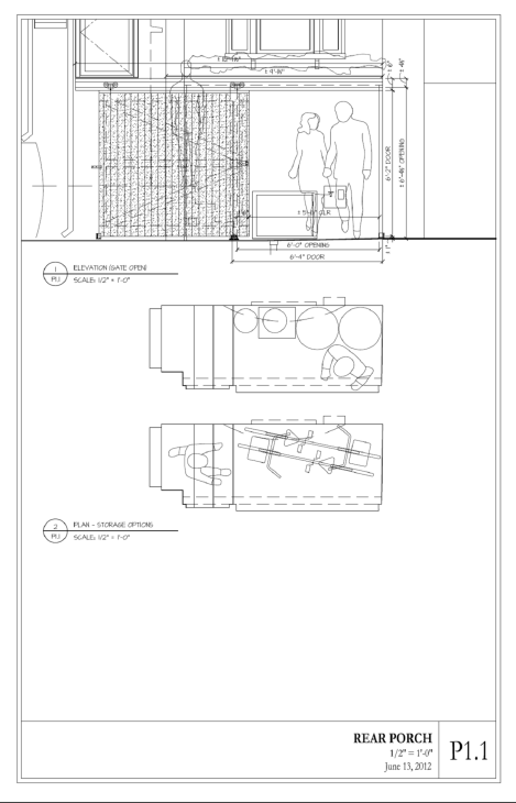
Before we started this project we had a cramped porch , with a deteriorating fence, and gate that typically stuck. And with such a small space and the gate swinging in it was always tight trying to bring in trash cans, groceries, bikes, etc, not to mention trying to open the gate when the area was filled with stuff.
So we came up with the idea of making the gate slide so that it was not in the way and have it open as wide as the porch (minus the area with the steps) for easy in & out. This of course required EVERYTHING to be rebuilt, but do we ever shy away from big tasks once we have an idea in our head?
We made the steps slightly smaller and the location of the gate being out beyond the fence also gave us a few more inches. But if we are going to do this we had to make sure everything fit so there were a few test fit plans.
We could even walk out the open gate side by side holding hands!
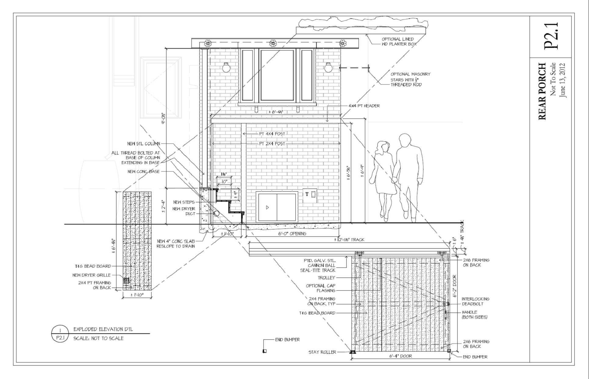
Since the gate had to be slightly lower than our old fence to be able to slide below the kitchen window we decided to add a planter box to the top of the fence to add a few extra inches of height, and as an added benefit we will also be able grow some herbs & veggies to use in the kitchen!
Of course all of this needed lots of planning to make sure everything worked and came together properly.
So those are a few of the drawings for this project. Over the course of our house reno, we have ton a lot of drawings, both on the computer and by hand, as we work our way through each project. I hope when we are all done we have some time to pull them all together into a set. It would be neat to have and look at them all together as a complete composition.




Pingback: URL·
Pingback: 2012: Half a Year in Review | madison square home·