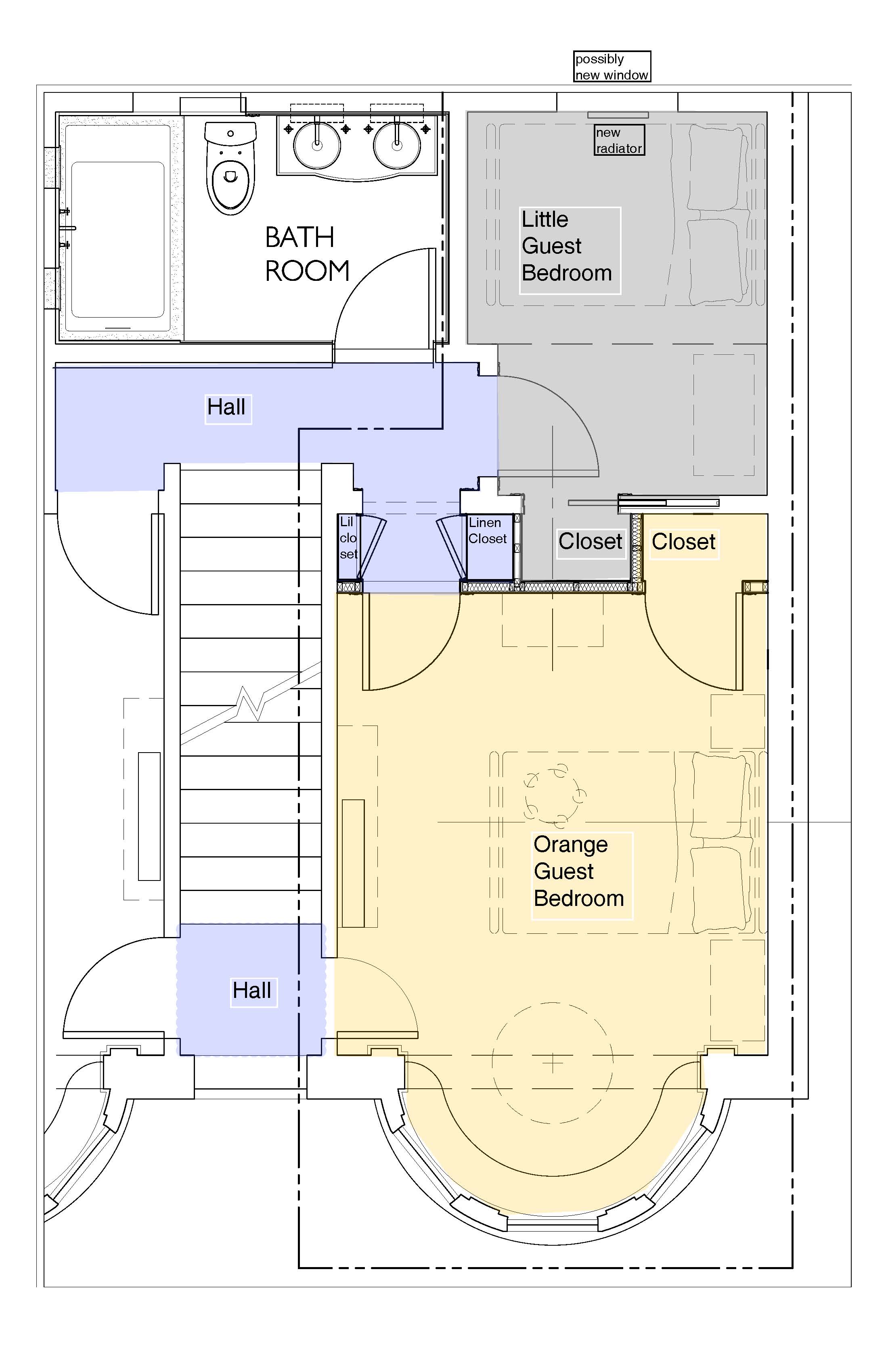
Here’s a quick look at the new closets we’re going to be framing up and how they work with the bedrooms/hall. It’s going to be a great use of space that previously was under-utilized- we’re adding 4 1/2 closets by removing 1…
The Little Bedroom (grey) is now going to have a closet with a pocket door. The Orange Bedroom closet is going to be slightly deeper, but have a slightly shorter rod than the old closet. We’re insulating for acoustic reasons, and providing each closet with a rod and shelf. We are also going to leave the door trim at the orange bedroom/hall door, move the door further into the room and basically extend the jamb. On each side of the extended jamb we are going to install operable paneled doors to the Linen & Mini storage closet. Those closets will get lots of shelves.
Here’s the elevation of the north orange bedroom wall. The left door is to the hall, the right door is the closet door. The short paneled doors above are for access to the storage area we’re creating above the closets. (Big enough for suitcases and other bulky items you ideally dont want to store in a basement, but need to hide away.) And space between the doors for a nice dresser and mirror above. The switches, duct /grille will need to be relocated, and so will two outlets.
We plan to finish up the hall during this project as well. One reason being – we bought a beautiful carpet runner on vacation in Turkey for the hall!
In other updates, we have ordered the new radiator & pocket door frame for the Little Bedroom, and pricing a replacement window. (The pocket door frame is why we had to demo so much wall between the two rooms.) Busy busy bees.
