Rob has been diligently and thoroughly documenting the bathroom reno the past three nights, so although I’ve posted the drawings before, here they are in all of their full color dimensioned glory.
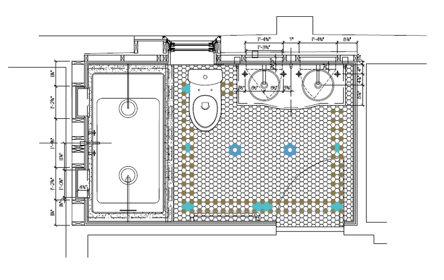
Plan: the pattern isn’t finalized quite yet.
Keep in mind the ‘yellow’ is the vintage pieces, white is new tile, and brown is the new beadboard paneling:
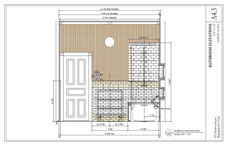
South wall:
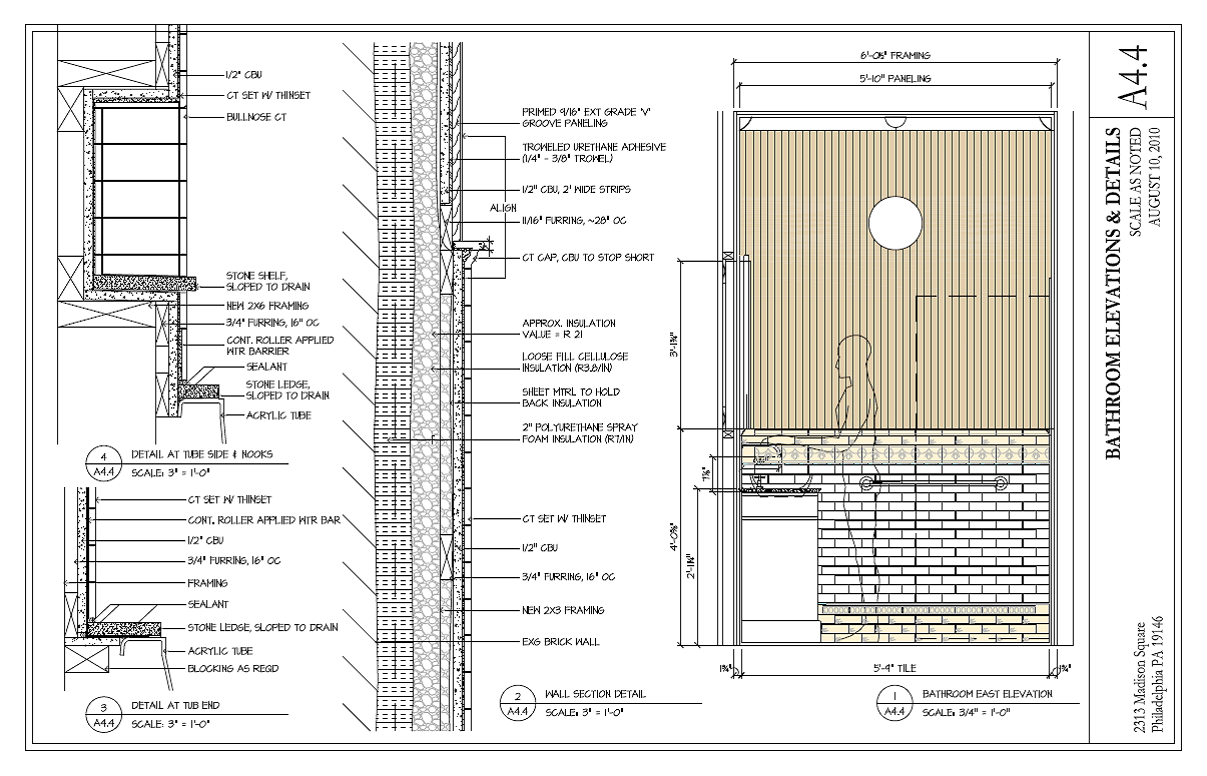
Future north wall:
Nook details, etc:
Hopefully the builders* can live up to these detailed contract documents.
*Yes, that’s us. Ha.




