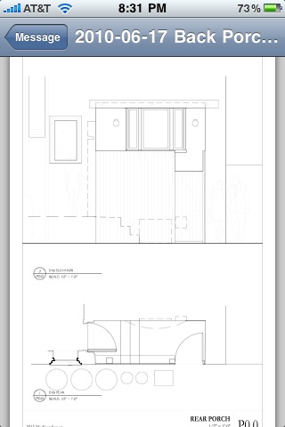
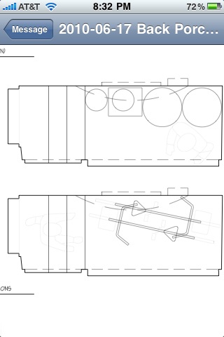
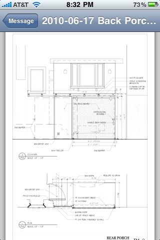
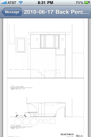
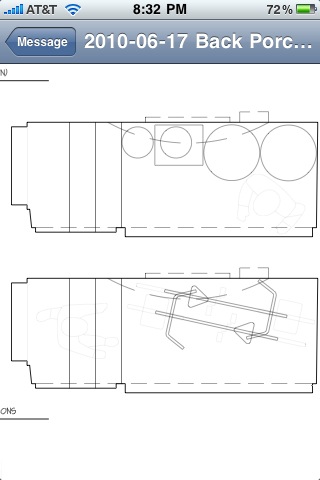
Plans For The Back June 19, 2010 · by madisonsquare · Bookmark the permalink. · Existing: Proposed: we’ll be adjusting the step locations, and will have a sliding door instead of swinging door to the alley: And we’ll be able to fit our bikes, or trash and recycling bins out there, depending. Share this: Email a link to a friend (Opens in new window) Email Share on Facebook (Opens in new window) Facebook Share on Pinterest (Opens in new window) Pinterest Like Loading... Related